El ámbito de actuación comprende
la totalidad de la parcela en la que está ubicado el Edificio Metálico.
La rehabilitación consiste en la
adecuación del antiguo mercado de Abastos de Badajoz (1899), trasladado desde la Plaza Alta, su ubicación original,
hasta el Campus Universitario de la ciudad en 1977, como salón de actos
académicos de la Universidad, con una capacidad para 500 personas junto con una
sala de exposiciones, y varios usos complementarios distribuidos en sus
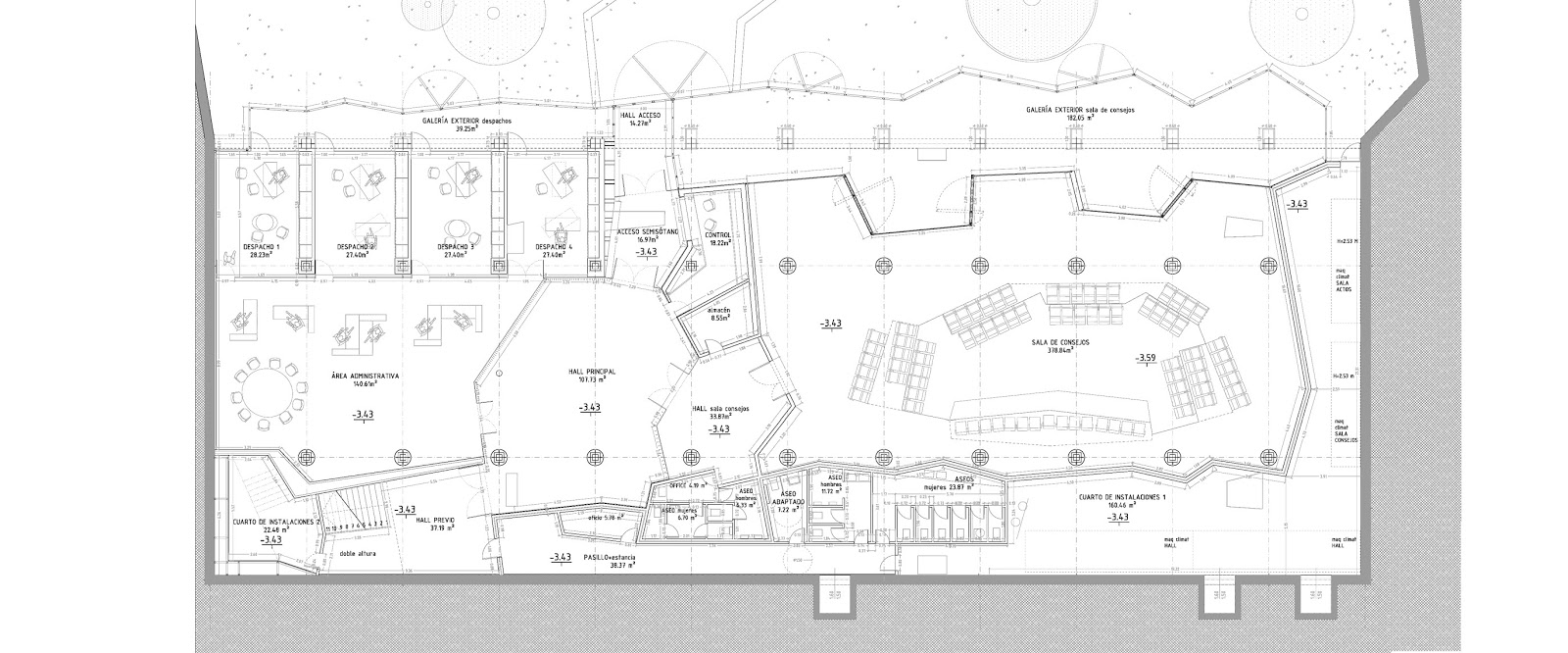
plantas: acceso (cota 172.5) y semisótano (cota 168.60)
La planta superior de acceso
alberga el salón de actos y la sala de exposiciones mediante el tratamiento
acústico de sus paramentos verticales y horizontales.
El semisótano cuenta con un
acceso independiente como resultado del tratamiento y excavación del terreno
del lado oriente del edificio. Contiene el área administrativa y la sala de
consejos, además de los aseos, almacenes e instalaciones necesarias para el
correcto funcionamiento del edificio.
Reseña histórica:
El mercado de
Abastos de Badajoz también conocido como mercado de San José, fue construido
como respuesta a las nuevas necesidades de servicios planteadas en las ciudades
en las últimas décadas del siglo XIX y comienzos del XX. Su inauguración
oficial se realizó el 17 de Septiembre del mismo 1899.
Una vez en desuso, en la década de los 70, se propone su
levantamiento y traslado de la Plaza Alta de Badajoz con el fin de liberar
espacio público. Acordado hacerlo, de inmediato se inició el desmontaje.
Aunque, al no contarse con ideas alternativas sobre qué uso darle, las piezas
fueron almacenadas. La situación hizo temer a ciertos sectores de la ciudad que
el monumento podía perderse, lo que motivó un movimiento de protesta vecinal.
En ese ambiente la entonces incipiente universidad de
Extremadura y el Ayuntamiento de la ciudad llegaron a un acuerdo para que el
edificio se levantara de nuevo, destinado a acoger la biblioteca general del
Campus y centro de diversas actividades. En su reposición, la construcción
original experimentó pequeñas alteraciones, como la disposición de un
semisótano que, a su vez, obligó a elevar la planta y con ello las escalinatas
de acceso, y algún otro aspecto menor.
El uso pensado de Biblioteca no se le asignó nunca al
repuesto mercado metálico, siendo su función desde 1977 servir de marco a
ciertos actos solemnes y de representación de la universidad.



